
the MVP
28 Bonham Rd, Mid-Levels, Hong Kong
香港島半山區般咸道28號
Elevations have shaped the world’s great cities,
where mountains and hills invariably serve as
the setting for their most coveted addresses.
繁華都市,每以山與高地為記標誌著最昂貴的地段、最稀有的視野

In Hong Kong, the Mid-Levels ridge has long been synonymous with privilege—
a hallowed threshold where generational legacies quietly unfold
香港半山,是百年來名流家族的象徵之地這裡,歲月凝鍊出睿智與價值

A sculptural form defined by symmetry and precision, clad in a refined palette of reflective glass, carbon gray color, and natural stone. These materials engage in a subtle dialogue, playing with light and texture throughout the day.
The façade stands in harmonious conversation with its surroundings—composed, timeless, and distinctly assured.
the MVP 以當代設計語言重新詮釋古典韻律,
建築結構彰顯對稱與比例之美。
建築師巧妙運用蒼翠綠植、碳灰及金色金屬飾面,
及石材立面,營造出「天人合一」的和諧意境,
使建築與自然彼此交融,環境閒適而不失雅緻。Club MVP
尊爵會所

Conceived as an oasis of calm, the clubhouse embodies a vision of curated tranquility. Its centerpiece is about 17-meter indoor heated pool and hydrotherapy spa, complemented by the luminous Crystal Bar—exquisitely crafted by Baccarat. An entertainment lounge with karaoke and a fully-equipped fitness studio complete this sanctuary, offering residents a space for holistic wellness and refined repose.
會所以「綠意盎然」為設計主題,打造都市中的一方綠洲,提供約17米室內恆溫泳池及按摩池、以及由法國水晶品牌 Baccarat 打造的池畔璀璨「Crystal Bar」,並備有卡拉OK影音設備的娛樂室及健身房等設備。
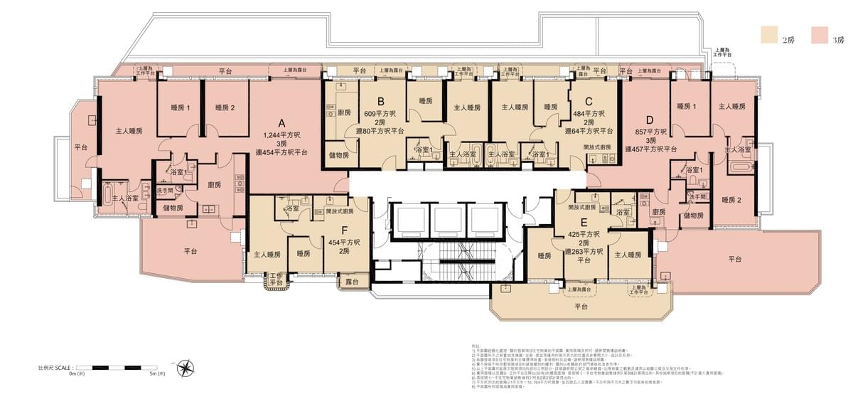
MVP Floor Plan
平面圖
6th Floor 6樓

7th~12th, 15th~22nd Floor
7 ~ 12, 15 ~ 22 樓

23rd, 25th~28th Floor
23, 25 ~ 28 樓

Newspaper snapshots
報章揀要
《港樓》英皇the MVP推14伙周六起招標
AASTOCKS新聞
英皇地產旗下西半山般咸道項目the MVP公布首份銷售安排,本周六(13日)起推出14伙招標,涵蓋三房、四房及特色戶。
the MVP首份銷售安排共14伙,包括9個三房標準戶、2個四房標準戶及3個特色戶,實用面積963至2,990方呎。英皇地產顧問方文彬表示,項目設有兩款付款方式,包括110天即供及建築期,不設指引價,價錢參考港島一手盤成交價。(ha/da)英皇般咸道住宅the MVP涉117伙 最大五房2990呎、設室外游泳池
香港01
撰文:李煥好英皇國際(0163)旗下般咸道28號住宅項目,今日(5日)正式命名為the MVP,項目已上載樓書共提供117伙,戶型涵蓋兩房至五房,當中主打兩房佔57%。發展商表示,明日11點接受VIP預約參觀三房示位。另外,金像獎影后衛詩雅亦有出席活動為項目命名,同時夥許冠文聲演樓盤the MVP的宣傳片。
項目共提供117伙,實用面積425至2,990平方呎,戶型涵蓋兩房至五房,當中兩房佔67伙、實用面積454至643平方呎;三房佔39伙、實用面積899至1,469平方呎;四房佔4伙、實用面積1,469平方呎,另設7伙特色戶、實用面積425至2,990平方呎。項目共提供117伙,實用面積425至2,990平方呎。周內公布銷售安排 最快下周開售
後市方面,他續指觀乎市場期待減息,相信屆時將利好樓市及提振成交,故選擇現階段推售新盤。談及新一份施政報告,楊政龍希望,政府能公布更多提振樓市政策,包括推出「購房通」及放寬印花稅等。英皇國際副主席楊政龍(左二)最大五房2990呎 設室外游泳池
項目標準樓層一梯6伙,共用三部升降機。當中最細一伙為6樓E室,實用面積425平方呎、屬兩房連開放式廚房間隔,連263平方呎平台。另最大一伙為30樓A室,實用面積2990平方呎、屬五房連儲物室間隔,連2308平方呎天台,內置樓梯上落,設室外游泳池。
英皇西半山般咸道項目命名為the MVP 提供117伙 單位面積425呎起
新盤新聞
撰文:殷凱怡、唐健恒
英皇國際(00163)旗下西半山般咸道28號項目今(5日)命名為the MVP,提供117伙,同步上載樓書,明日(6日)開示範單位,料最快下周開售。
英皇地產銷售及市場總監柯穎豪指出,項目樓高27層,共設117伙,涵蓋2房至4房戶型,另設特色單位,實用面積約425至2,990平方呎,其中主打2房單位,佔總伙數約57%。
英皇國際副主席楊政龍表示,項目位處西半山傳統豪宅區,取其名「the MVP」寓意「The Most Valuable Place for The Most Valuable People」。項目將於今日同步上樓書,明日開示範單位,預計周內上載銷售安排,最快下周開售,並會視乎市場反應,考慮以招標形式發售,定價將參考港島一手樓盤成交價。
問及集團財務重組,他回應指,一直與銀行展開友善對話,雖不便透露詳情,但強調一切順利進行。另指,市場預料月內減息,加上相信施政報告醞釀「購房通」及放寬印花稅等利好樓市政策,相信可提振樓市,料下半年樓市向好。
早前曾任同系香港仔澄天代言人的金像獎影后衛詩雅,亦親臨the MVP的命名儀式。期間,她直言向來一直支持英皇的項目,並表示心目中最有價值的居住環境須具備實力、魅力及親和力,加上自己剛結婚,故亦會考慮附近的交通及校網等,為日後或可能養育小孩而早作打算。
此外,樓書顯示,the MVP坐落於西半山般咸道28號,屬單幢設計,27層高,提供117伙,戶型由2房至5房,實用面積425至2,990平方呎,預計關鍵日期為2026年9月30日。
全盤面積最細單位為6樓E室,實用面積425平方呎2房,外連263平方呎平台;最大則為30樓A室,實用面積2,990平方呎,設有5間套房、儲物室連廁及化妝間,外連2,308平方呎天台。天台由內置樓梯連接,並設有室外泳池。
英皇西半山豪宅項目命名「the MVP」 開售
文匯網 / 經濟 / 地產
英皇國際副主席楊政龍(右)補充,項目位處西半山傳統豪宅區,取其名「the MVP」寓意「The Most Valuable Place for The Most Valuable People」。
香港文匯報訊 英皇國際(0163)旗下西半山般咸道28號項目今日命名為「the MVP」,全盤提供117伙,並同步上載樓書,落實明日開放示範單位予公眾,料最快下周開售。
英皇地產銷售及市場總監柯穎豪指出,項目樓高27層,共設117伙,戶型涵蓋2房至4房,另設特色單位,實用面積約425至2,990方呎,主打2房單位,佔總伙數約57%。
英皇國際副主席楊政龍補充,項目位處西半山傳統豪宅區,取其名「the MVP」寓意「The Most Valuable Place for The Most Valuable People」。項目將於預計周內上載銷售安排,最快下周開售,並會視乎市場反應,考慮以招標形式發售,定價將參考港島一手樓盤成交價。
他續指,市場預料月內減息,加上相信施政報告醞釀「購房通」及放寬印花稅等利好樓市政策,相信可提振樓市,料下半年樓市向好。
免責聲明:
本網站旨在提供資料及圖片檔案服務供內部閱覽,不聲明或保證所提供訊息的準確性和完整性。在撰寫本網站時,雖已作出合理和謹慎的考慮,對資料的完整和準確性恕不保證、明示或暗示絕對無誤。本網站內的圖片與發展商的樓盤並無任何關係。本網站並不是發展項目之官方網站。準買家如欲了解發展項目詳情,請參閱售樓說明書。資料有可能出現售價、現金或其他條件上的改動,或撤回而不經提前通知,並可能受特別條款約束。因使用此資料而直接或間接引致的損失或損毀。本公司恕不負責。本網站内所有内容包括一手新盤資料,僅供參考和借鑒,物業資料等一切資料以發展商最新公布為準。本頁面所提到房屋面積如無特別標示,均指實用面積。客戶應自行確保資料或内容的完整性和準確性。所載資料僅供參考,並不構成要約或合約一部份。如有需要,客戶應自行咨詢相關法律出及/或專業意見。本網站/宣傳資料內載列的相片、圖像、繪圖或素描顯示純屬畫家對有關發展項目之想像。有關相片、圖像、繪圖或素描並非按照比例繪畫及/或可能經過電腦修飾處理。準買家如欲了解發展項目的詳情,請參閱售樓說明書。賣方亦建議準買家到有關發展地盤作實地考察,以對該發展地盤、其周邊地區環境及附近的公共設施有較佳了解。
Disclaimer:
This website is not published by the Vendor. | This website/promotional material shall not constitute or be construed as constituting any offer, undertaking, representation or warranty, whether express or implied, by the Vendor. The Vendor is not seeking any general expression of intent or specific expression of intent on any property in the Development. | Prospective purchasers are advised to refer to the sales brochure for any information on the Development. | Please refer to the sales brochure for details. The photographs, images, drawings or sketches shown in this website/promotional material represent an artist’s impression of the development concerned only. They are not drawn to scale and/or may have been edited and processed with computerized imaging techniques. Prospective purchasers should make reference to the sales brochure for details of the development. The Vendor also advises prospective purchasers to conduct an on-site visit for a better understanding of the development site, its surrounding environment and the public facilities nearby.





















